Дом у леса · Бекетово Парк
Лесной вид · Тихая улица

Дом с вторым светом, спа- зоной и террассами.
Доработайте под ваш вкус.

171 м² + 80 м² террасы · 3 спальни · участок 10 соток · КП «Бекетово Парк»

УШП · монолит
Bonolit 400
ЖБ перекрытия/лестница
Скважина 56 м · септик · эл-во
Рендер после отделки

Текущее состояние и оценка доработки

Показываем, что уже сделано, что осталось, и даём ориентир бюджета.

AS-IS (как есть)

Коробка законсервирована. Готова к финальной доработке.

  • Быстрый выход на сделку
  • Передача проекта/чертежей
  • Передаем проверенных подрядчиков
Цена сейчас
₽ 9.95 млн
Уточнить

Оценка доработки

Доработать нужно: фасад, гидроизоляция кровли, окна, инженерия.

  • Подрядчики уже есть, можем передать в доработку и сопроводить по этапам
  • Ориентир бюджета (без чистовой внутренней отделки): ₽ 4.9 млн
Ориентир бюджета
₽ 4.9 млн
Уточнить

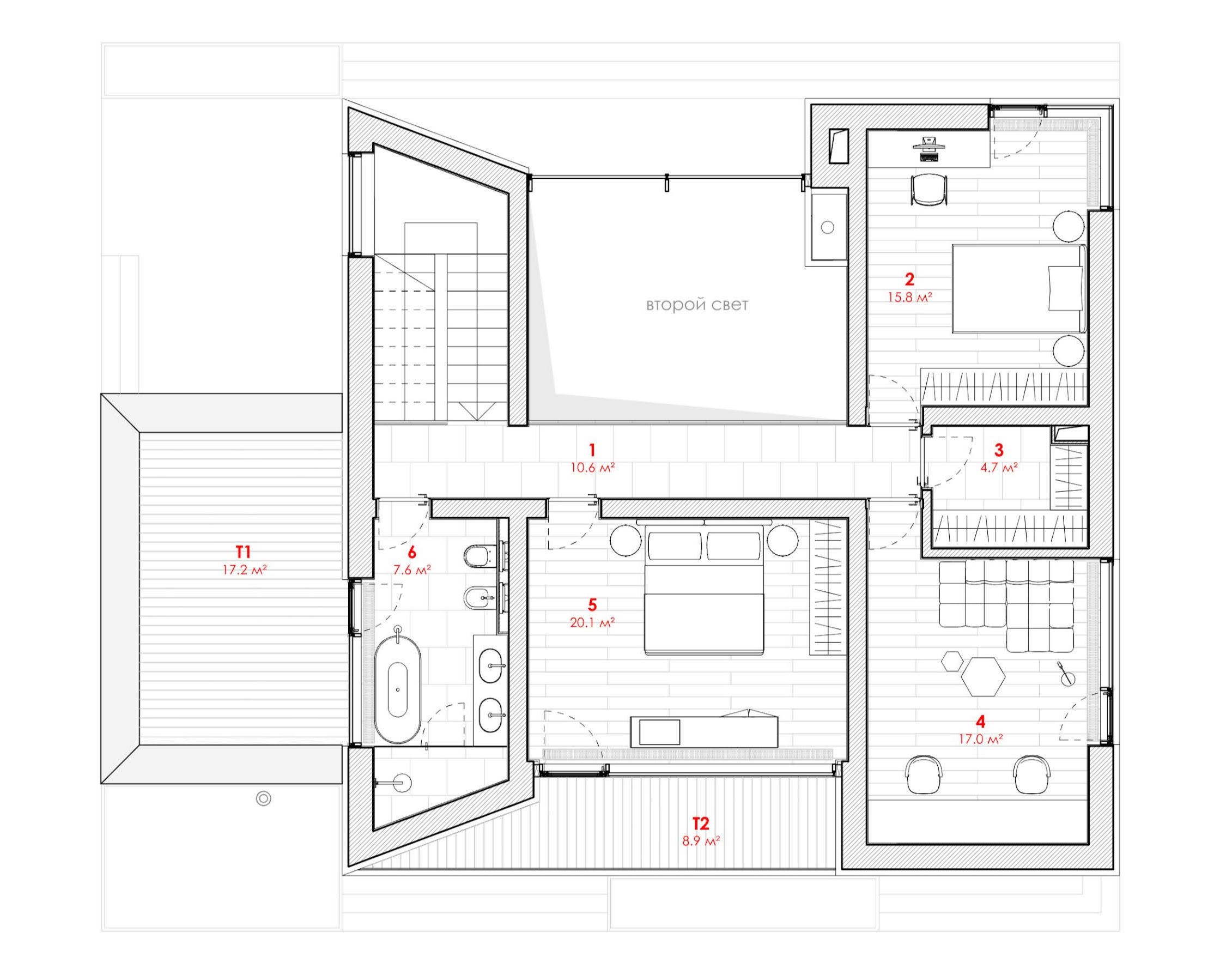
Архитектура и конструктив

Второй свет в гостиной, выход на эксплуатируемую кровлю из мастер-спальни, панорамные остекления на террасы.

171 м²общая
3.2 мвысота этажей
3спальни
~80 м²террасы
  • Блок: Bonolit 400 (D500)
  • Фундамент УШП, монолитные перекрытия
  • ЖБ лестница, подготовка под панорамы
План 1 План 2 План 3
Спа-зона и терраса

Спа-зона и эксплуатируемая кровля

Сценарии: утренний кофе на высоте, вечерняя джакузи, барбекю-зона на террасе. Опции гидроизоляции, трапов, тёплых контуров — по пакету.

  • Гидроизоляция кровли — как часть пакета
  • Подготовка под SPA\, тёплый пол, освещение
  • Деревянный настил/плитка — на выбор

Участок и окружение

Ровный участок 10 соток с видом на лес. Охраняемый посёлок с озером, пляжем, плодовым садом и детской площадкой.

Коммуникации

Подключено

  • Электричество (возможность увеличения мощности)
  • Скважина 56 м
  • Септик

Нужно выполнить

  • Пакет: окна/фасад/кровля
  • Инженерия (отопление, электроточки, сантехника)
  • Благоустройство

Локация и логистика

78 км от МКАД по М-4 или Симферопольскому. Ближайшие магазины, садики и медицина — в 15–25 минутах.

Документы и статус

Прозрачно показываем статус земель и выписки. По запросу отправим комплект документов и пояснительную записку.

Калькулятор «до ключа»

Оцените ориентировочный бюджет и сроки. Итог пришлём на почту.

Ориентировочный бюджет
Срок: —
Получить точную смету

Частые вопросы

Можно ли изменить материалы пакета?

Да, пакет — отправная точка. Подберём баланс цены/срока/вида и зафиксируем в договоре.

Какие сроки достройки?

Зависят от пакета и сезона. В среднем 8–16 недель на фасад/окна/кровлю и базовую инженерию.

Как организованы показы?

По пропускам. Выберите удобное время ниже — вышлем подтверждение и пин для въезда.

Контакты

Позвонить

Отправляя заявку, вы соглашаетесь с обработкой персональных данных.

Becketovo House
Смета Показ